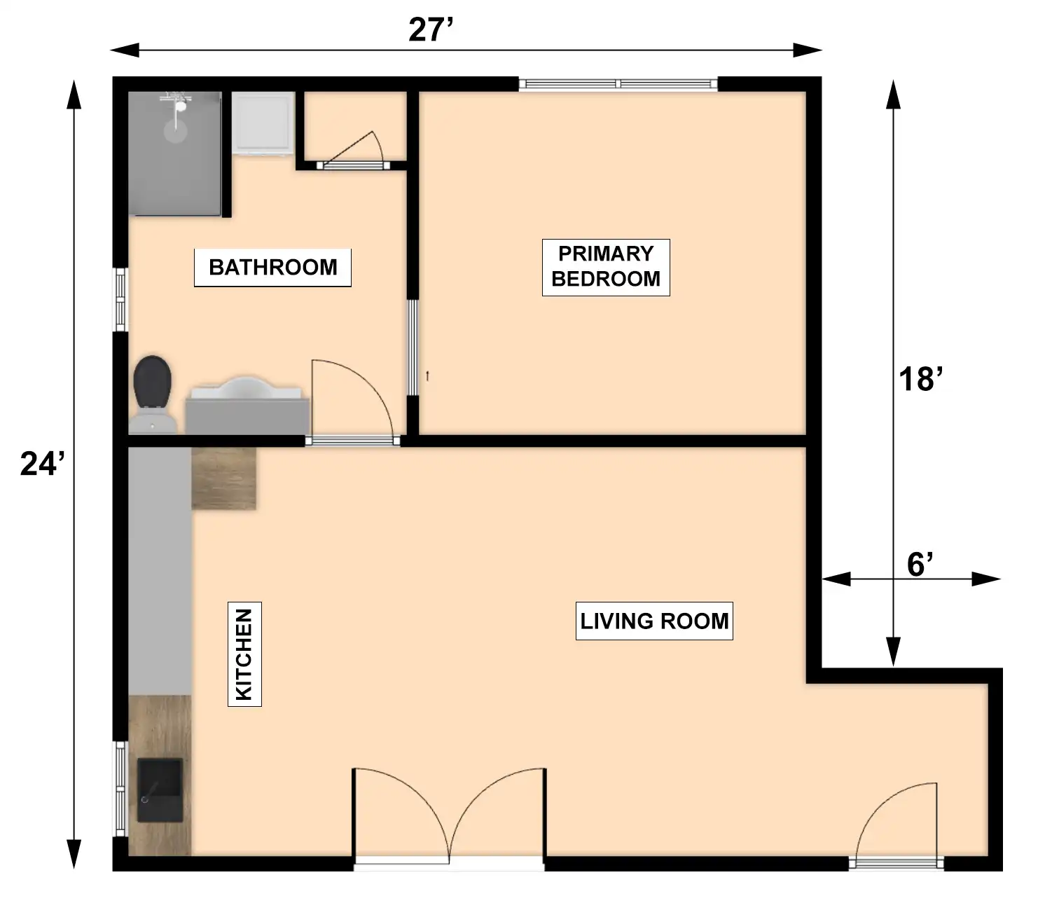
Stanford 684B

  • One or Two Bed
  • One Bath
  • 684sqft

The Stanford 684B is a versatile 684 sqft garden suite designed for modern, independent living in your backyard. It features a flexible one or two bedroom layout with a full bathroom, blending functionality and style. High-sloped ceilings and an open-concept design create a bright, spacious interior, while FlexoBuild’s durable steel insulated panels deliver energy efficiency and year-round comfort. Engineered for quick assembly with minimal disruption, the Stanford 684B is an excellent solution for multigenerational families, rental income, or a peaceful backyard retreat in Canada.

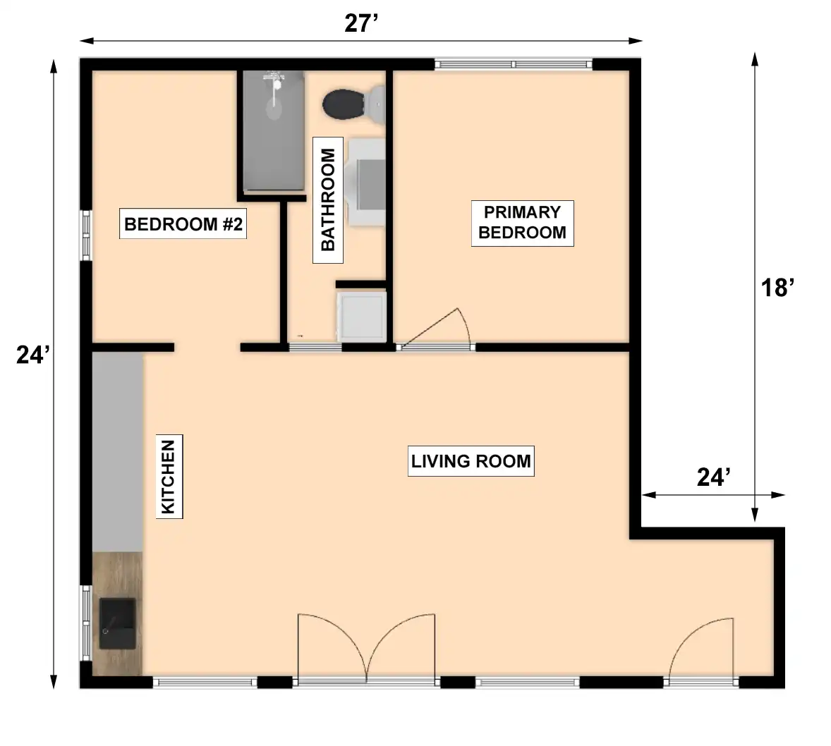
Stanford 684B 2 Bedroom

  • 2
  • 1

The Stanford 684B is a versatile 684sqft garden suite, designed for modern, independent living in your backyard. With a flexible one or two-bedroom layout and a full bathroom, this home blends functionality and style. Its high-sloped ceilings and open-concept design create a bright, spacious feel, while Flexobuild’s durable steel-insulated panels provide energy efficiency and year-round comfort. Engineered for quick assembly with minimal disruption, the Stanford 684B is an ideal solution for multigenerational families, rental income, or a peaceful private retreat in Canada.

Note: Images may show features not included in the FlexoBuild kit, such as exterior lighting and decorative finishes. Floorplans are for reference only and include furnishings by others. Final layouts with door and window choices and placements confirmed during the FlexoBuild design phase. See "What to Expect" for included/excluded items. Design changes may incur engineering fees. Contact us for details.

What To Expect

FlexoBuild Home Kit

  • Delivery to site
  • Building permit drawing package (2)
  • Detailed instruction manual
  • Connection angles & stiffeners
  • Special panel clamps, fasteners & sealants
  • Galvanized c-channel floor members
  • Pre-cut Structural Insulated Panel (SIP) system including floor, walls and roof, complete with finished exterior facade, thermal & moisture protection.
  • Standard exterior trim & flashing package
  • Exterior windows & doors - (supply only, openings cut on site by others)

Estimate to Complete(3)

(by FlexoConnect Member)

  • Home assembly & installation
  • Trenching and utility services connection (4)
  • Helical Pile Foundation
  • Interior finishes such as required framing, drywall, flooring, trim, wall paint, kitchen cabinetry supply & installation (5)
  • Bathroom vanity, toilet and shower.
  • Electrical, mechanical and plumbing
  • Entry deck(s) (5)

All pricing excludes applicable taxes.
(1) Your project may qualify under the GST/HST New Housing Rebate program. Click
here for more information.
(2) All fees, such as permit application, survey, grading, development, etc. or any other supporting documents as requested from the municipality is payable by owner.
(3) Your local FlexoConnect member will validate all project specific prices including foundation, home installation, services, and interior finishes.
(4) Assuming approximately 30ft from services connection.
(5) Estimate to Complete is based on standard finishes. Personal preferences may incur an additional cost.