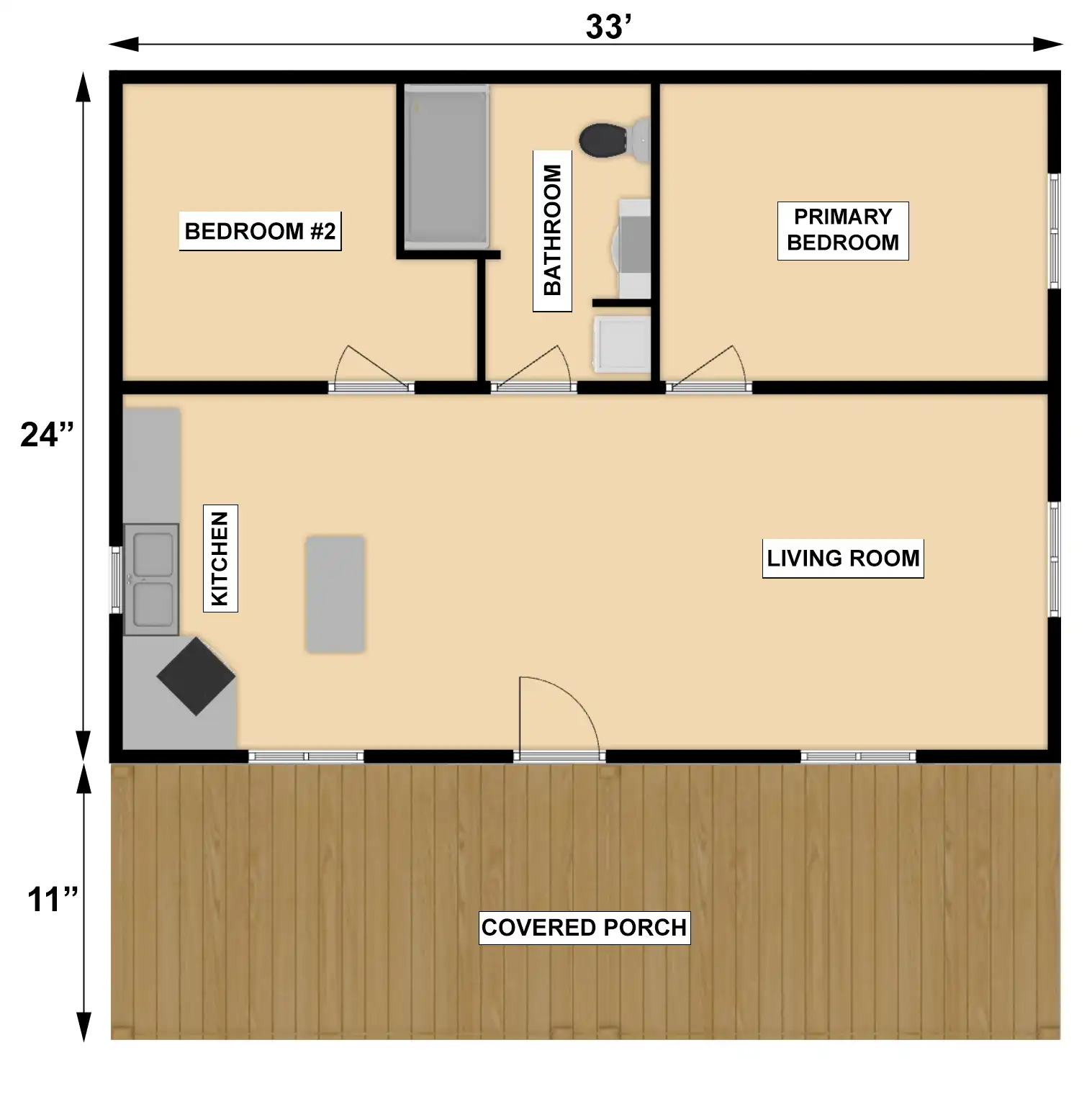
Stanford 792P

  • Two Bed
  • One Bath
  • 792sqft + Porch

Stanford 792P

  • 1 or 2
  • 1

The Stanford 792P is a versatile 792 sqft backyard garden suite designed for modern, self-sufficient living and inlcudes a wonderful front veranda. It features a flexible 1 or 2 bedroom layout with a full bathroom, high sloped ceilings, and an open floor plan that creates a bright and spacious interior. Large panoramic windows bring in natural light and enhance the connection to the outdoors. Built with FlexoBuild’s advanced steel insulated panels, this home offers excellent energy efficiency and long term durability. With quick installation and minimal disruption, the Stanford 792P is a great solution for multigenerational living, rental income, or a quiet backyard retreat in Canada.

Note: Images may show features not included in the FlexoBuild kit, such as exterior lighting and decorative finishes. Floorplans are for reference only and include furnishings by others. Final layouts with door and window choices and placements confirmed during the FlexoBuild design phase. See "What to Expect" for included/excluded items. Design changes may incur engineering fees. Contact us for details.

What To Expect

FlexoBuild Home Kit

  • Delivery to site
  • Building permit drawing package (2)
  • Detailed instruction manual
  • Connection angles & stiffeners
  • Special panel clamps, fasteners & sealants
  • Galvanized c-channel floor members
  • Pre-cut Structural Insulated Panel (SIP) system including floor, walls and roof, complete with finished exterior facade, thermal & moisture protection.
  • Standard exterior trim & flashing package
  • Exterior windows & doors - (supply only, openings cut on site by others)

Estimate to Complete(3)

(by FlexoConnect Member)

  • Home assembly & installation
  • Trenching and utility services connection (4)
  • Helical Pile Foundation
  • Interior finishes such as required framing, drywall, flooring, trim, wall paint, kitchen cabinetry supply & installation (5)
  • Bathroom vanity, toilet and shower.
  • Electrical, mechanical and plumbing
  • Entry deck(s) (5)

All pricing excludes applicable taxes.
(1) Your project may qualify under the GST/HST New Housing Rebate program. Click
here for more information.
(2) All fees, such as permit application, survey, grading, development, etc. or any other supporting documents as requested from the municipality is payable by owner.
(3) Your local FlexoConnect member will validate all project specific prices including foundation, home installation, services, and interior finishes.
(4) Assuming approximately 30ft from services connection.
(5) Estimate to Complete is based on standard finishes. Personal preferences may incur an additional cost.